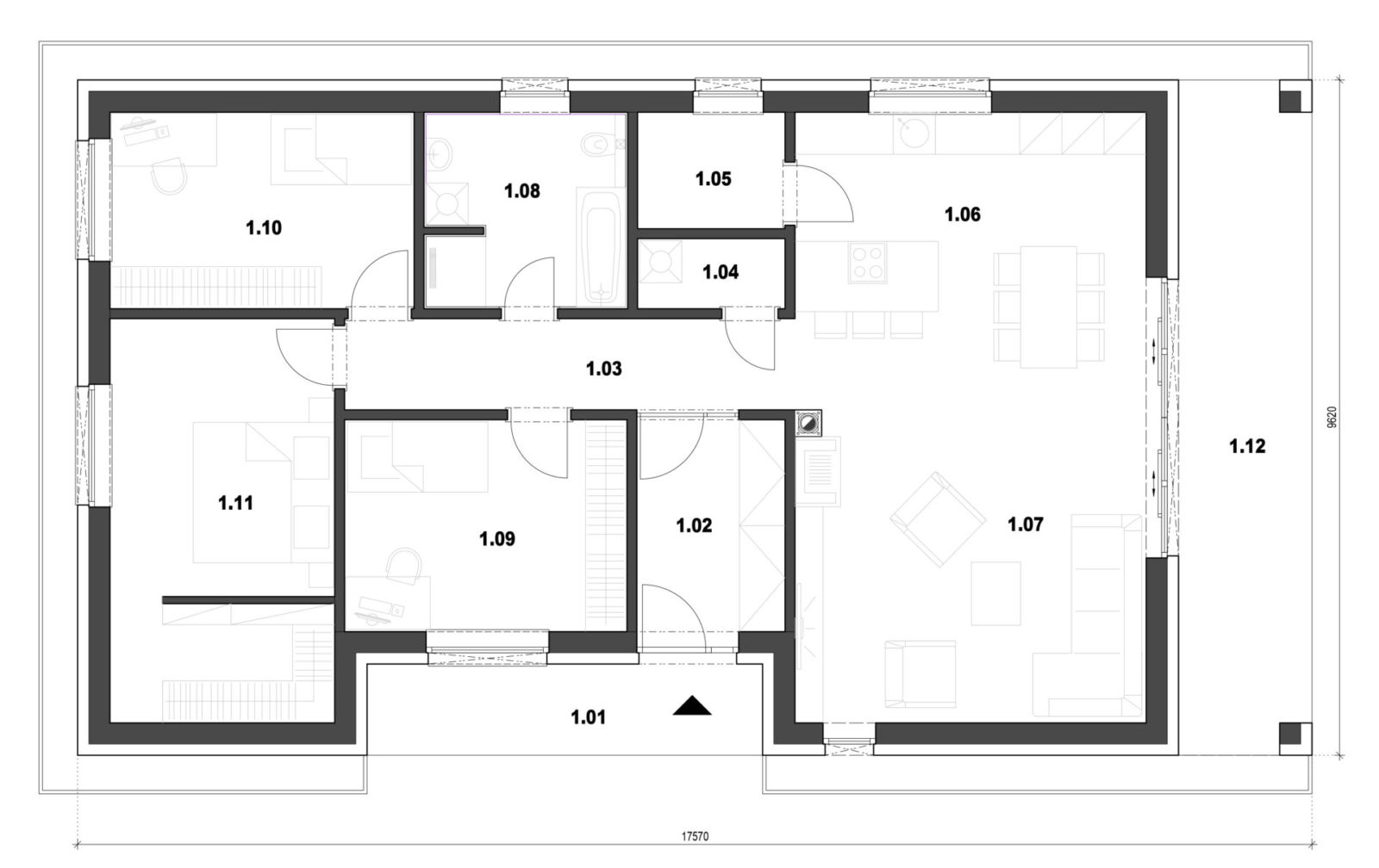
Vchod do domu je z bočnej strany prekrytý vsunutým závetrím. V zádverí domu sa nachádza odkladací priestor ako vstavaná skriňa. Dom je rozdelený na dennú a nočnú časť, ktoré je možno ľahko oddeliť aj dverami. V nočnej časti domu sa nachádzajú 2 detské izby, kúpeľňa s WC a spálňa so samostatným šatníkom. Dennú časť domu tvorí technická miestnosť, obývacia izba spojená s kuchyňou a jedálňou kde sa nachádza veľká špajza. Kuchyňa a obývacia izba sú orientované do záhrady, s ktorou ich spája terasa prekrytá vysunutím strechy. Dom je vhodný pre 4 – 5 člennú rodinu.







