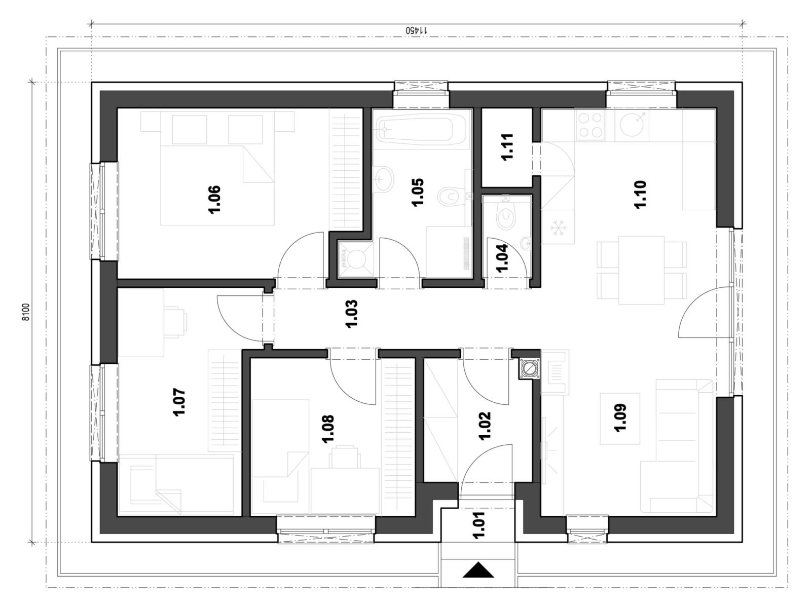
Tento rodinný dom patrí k tým menším v kategórii 4 izbových rodinných domov. Plochy všetkých miestností sú optimalizované takým spôsobom, aby poskytovali dostatok úložného priestoru pre 4 člennú rodinu, pri zachovaní primeraného súkromia aj komfortu. Pôdorysný tvar rodinného domu je obdĺžnikovitého tvaru, čo je ideálne z hľadiska úspory energií. Za vstupom sa nachádza samostatné WC a kúpeľňa. Kuchyňa je spojená s obývačkou a prislúcha k nej aj priestor špajzy. Z obývacej a kuchynskej časti je východ na terasu o rozmere 4×3 m. Strecha je navrhnutá ako valbová, pričom svojím lokálnym predĺžením zastrešuje vstup. Nosná konštrukcia strechy je navrhnutá z masívneho dreveného krovu. Takéto riešenie umožňuje využiť priestor krovu na skladovanie rôznych predmetov, ideálne sezónnych vecí, ku ktorým nepotrebujete častý prístup.







